PROJEKT NEMIRA D1 OMIŠ

U slikovitom mjestu Nemira, samo 3 km od Omiša i 25 km od Splita, nalazi se nova stambena zgrada s modernim stanovima koji nude udobnost, vrhunske materijale i nezaboravan pogled na more.
Nemira je savršeno mjesto za miran život ili odmor – okružena je borovim šumama, šljunčanim plažama i kristalno čistim morem.
Ova novogradnja u Nemiri predstavlja idealnu priliku za život, investiciju ili odmor, spajajući modernu arhitekturu s prirodnim ljepotama Dalmacije. Lokacija osigurava stabilan rast vrijednosti nekretnina i izniman potencijal za turistički najam.

  • Udaljenost od mora 150,00 m

  • Veličina nekretnine 2126,31 neto m2

  • Namjena stanovi-apartmani

  • Cijena po m2 4200 - 4900 eur

 

Stan D1-S01 prizemlje

Ukupna površina: 80.52 m²
Raspored prostorija:
•Dnevni boravak s kuhinjom i blagovaonicom: 29.63 m²
•Spavaća soba 1: 13.87 m²
•Spavaća soba 2: 10.88 m²
•Kupaonica: 5.96 m²
•Hodnik: 6.42 m²
•WC: 2.08 m²
•Terasa: 7.50 m² (koeficijent 0.50)
•Vrt: 24.15 m² (koeficijent 0.25)
Opis:
Stan s vlastitim vrtom i natkrivenom terasom, idealan za obitelj ili turistički najam. Mirna lokacija u prizemlju s optimalnom iskorištenošću prostora. Energetski razred: A.
 

CIJENA: 346.710,00 EUR

 

 

Stan D1-S02 prizemlje

Ukupna površina: 57.91 m²
Raspored prostorija:
•Dnevni boravak s kuhinjom: 28.45 m²
•Spavaća soba: 11.88 m²
•Kupaonica: 5.96 m²
•Hodnik: 4.62 m²
•WC: 2.08 m²
•Balkon: 9.84 m² (koeficijent 0.50)
Opis:
Kompaktan i funkcionalan stan s balkonom orijentiranim prema mirnom dvorištu. Pogodan za parove ili investitore. Energetski razred: A.
 

CIJENA: 243.222,00 EUR

 

Stan D1-S03 prizemlje

Ukupna površina: 55.22 m²
Raspored prostorija:
•Dnevni boravak s kuhinjom: 24.83 m²
•Spavaća soba: 13.78 m²
•Kupaonica: 5.96 m²
•Hodnik: 4.62 m²
•WC: 2.08 m²
•Balkon 1: 7.90 m² (koeficijent 0.50)
•Balkon 2: 4.10 m² (koeficijent 0.50)
Opis:
Stan s dvije lođe, idealan za one koji traže dvije vanjske površine i kvalitetan raspored stambenih prostorija. Energetski razred: A.

CIJENA: 232.000,00 EUR

 

Stan D1-S04 prizemlje

Ukupna površina: 72.44 m²
Raspored prostorija:
•Dnevni boravak s kuhinjom: 28.45 m²
•Spavaća soba 1: 11.88 m²
•Spavaća soba 2: 11.27 m²
•Kupaonica: 5.96 m²
•Hodnik: 4.62 m²
•WC: 2.08 m²
•Balkon: 16.36 m² (koeficijent 0.50)
Opis:
Prostrani stan s velikim balkonom, idealan za obitelji koje traže dodatni prostor i kvalitetan pogled. Energetski razred: A.

CIJENA: 304.250,00 EUR

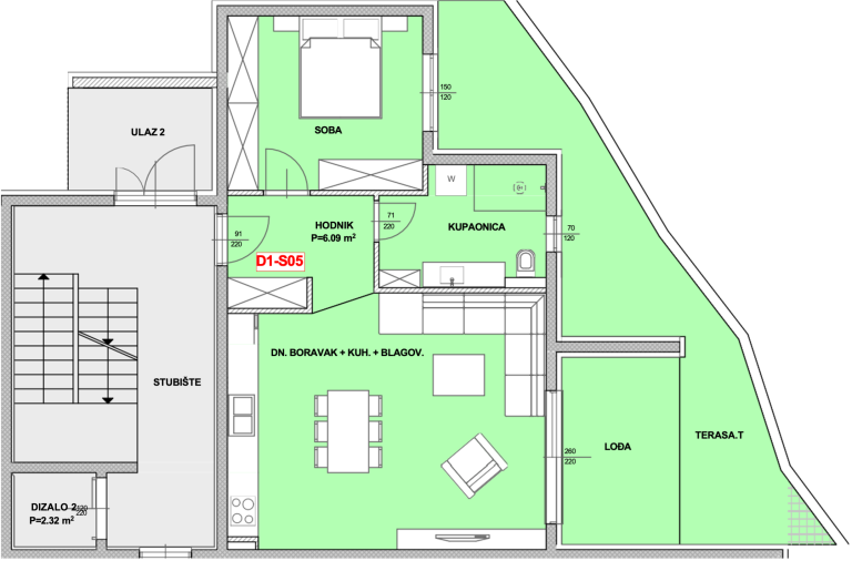
Stan D1-S05 prizemlje

Ukupna površina: 66.98 m²
Raspored prostorija:
•Dnevni boravak s kuhinjom: 24.83 m²
•Spavaća soba 1: 13.78 m²
•Spavaća soba 2: 11.27 m²
•Kupaonica: 5.96 m²
•Hodnik: 4.62 m²
•WC: 2.08 m²
•Balkon: 8.88 m² (koeficijent 0.50)
Opis:
Stan s funkcionalnim rasporedom i balkon koji pruža dovoljnu vanjsku površinu za opuštanje. Energetski razred: A.

CIJENA: 281.400,00 EUR

 

 

Stan D1-S06 I. KAT

Ukupna površina: 59.33 m²
Raspored prostorija:
•Dnevni boravak s kuhinjom: 28.45 m²
•Spavaća soba: 11.88 m²
•Kupaonica: 5.96 m²
•Hodnik: 4.62 m²
•WC: 2.08 m²
•Lođa: 13.36 m² (koeficijent 0.50)
Opis:
Stan na prvom katu s prostranom lođom s pogledom, idealan za ugodan boravak i investiciju. Energetski razred: A.

CIJENA: 264.000,00 EUR

 

 

Stan D1-S07 I. KAT

Ukupna površina: 58.87 m²
Raspored prostorija:
•Dnevni boravak s kuhinjom: 24.83 m²
•Spavaća soba: 13.78 m²
•Kupaonica: 5.96 m²
•Hodnik: 4.62 m²
•WC: 2.08 m²
•Lođa 1: 11.20 m² (koeficijent 0.50)
•Lođa 2: 4.80 m² (koeficijent 0.50)
Opis:
Dvije lođe za dodatnu fleksibilnost i kvalitetan pogled. Stan pogodan za komforan život ili iznajmljivanje. Energetski razred: A.

CIJENA: 259.600,00 EUR

 

 

Stan D1-S08 I. KAT

Ukupna površina: 54.49 m²
Raspored prostorija:
•Dnevni boravak s kuhinjom: 24.83 m²
•Spavaća soba: 11.27 m²
•Kupaonica: 5.96 m²
•Hodnik: 4.62 m²
•WC: 2.08 m²
•Lođa: 11.46 m² (koeficijent 0.50)
Opis:
Kompaktan stan s jednom prostranom lođom, pogodan za povoljan život ili sezonac. Energetski razred: A.
 

CIJENA: 239.800,00 EUR

 

Stan D1-S09 I. KAT

Ukupna površina: 56.88 m²
Raspored prostorija:
•Dnevni boravak s kuhinjom: 24.83 m²
•Spavaća soba: 13.78 m²
•Kupaonica: 5.96 m²
•Hodnik: 4.62 m²
•WC: 2.08 m²
•Lođa: 11.22 m² (koeficijent 0.50)
Opis:
Stan s kvalitetnim rasporedom prostorija i kvalitetnom izolacijom, idealan za dugoročni najam. Energetski razred: A.

CIJENA: 250.360,00 EUR

 

Stan D1-S10 I. KAT

kupna površina: 71.29 m²
Raspored prostorija:
•Dnevni boravak s kuhinjom: 28.45 m²
•Spavaća soba 1: 11.88 m²
•Spavaća soba 2: 11.27 m²
•Kupaonica: 5.96 m²
•Hodnik: 4.62 m²
•WC: 2.08 m²
•Lođa: 14.06 m² (koeficijent 0.50)
Opis:
Prostrani stan s dvoje spavaćih soba i velikom lođom pogodan za obitelj i za investiciju. Energetski razred: A.

CIJENA: 313.720,00 EUR

 

Stan D1-S11 II. KAT

Ukupna površina: 71,44 m²
Raspored prostorija:
•Dnevni boravak s kuhinjom: 28.45 m²
•Spavaća soba: 11.88 m²
•Kupaonica: 5.96 m²
•Hodnik: 4.62 m²
•WC: 2.08 m²
•Lođa: 13.36 m² (koeficijent 0.50)
Opis:
Stan s panoramskim pogledom na more, klimatiziran, s gotovo savršenom funkcionalnošću. Idealno za obitelj ili sezonski boravak.

CIJENA: 328.670,00 EUR

 

Stan D1-S12 II. KAT

Ukupna površina: 57,94 m²
Raspored prostorija:
•Dnevni boravak s kuhinjom: 24.83 m²
•Spavaća soba: 13.78 m²
•Kupaonica: 5.96 m²
•Hodnik: 4.62 m²
•WC: 2.08 m²
•Lođa: 11.20 m² (koeficijent 0.50)
Opis:
Otvoren i modernan raspored s puno prirodnog svjetla, pogodan za obiteljski život ili turistički najam.

CIJENA: 266.800,00 EUR

 

Stan D1-S13 II. KAT

Ukupna površina: 63,15 m²
Raspored prostorija:
•Dnevni boravak s kuhinjom: 24.83 m²
•Spavaća soba: 11.27 m²
•Kupaonica: 5.96 m²
•Hodnik: 4.62 m²
•WC: 2.08 m²
•Lođa: 11.46 m² (koeficijent 0.50)
Opis:
Stan s prelijepim pogledom, s funkcionalnim rasporedom, spavaće sobe orijentirane na jug. Idealno za mlade ili investitore.

CIJENA: 290.500,00 EUR

 

Stan D1-S14 II. KAT

Ukupna površina: 75,95 m²
Raspored prostorija:
•Dnevni boravak s kuhinjom: 28.45 m²
•Dvije spavaće sobe: 11.88 m² i 11.27 m²
•Kupaonica: 5.96 m²
•Balkon/lođa: 16.23 m²
Opis:
Veliki stan za obitelj, s velikim balkonima i svijetlim sobama, odličan za dugoročno stanovanje ili najam.

CIJENA: 349.600,00 EUR

 

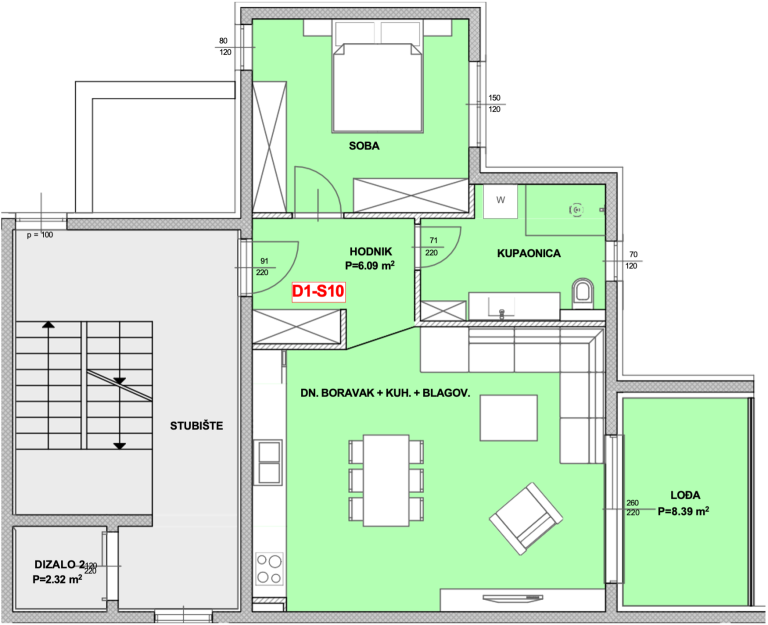
Stan D1-S15 II. KAT

Ukupna površina: 62,64 m²
Raspored prostorija:
•Spavaća soba: 12.92 m²
•Dnevni boravak s kuhinjom i blagovaonicom: 30.10 m²
•Hodnik: 6.09 m²
•Kupaonica: 7.23 m²
•Lođa: 8.39 m² (koeficijent 0.75)
Opis:
Veliki stan s prostranim dnevnim prostorom i udobnom spavaćom sobom, opremljen je za dugoročan boravak ili sezonski najam. Energetski razred: A.

CIJENA: 308.200,00 EUR

 

Stan D1-S16 III. KAT

Ukupna površina: 71,44 m²
Raspored prostorija:
•Dnevni boravak s kuhinjom i blagovaonicom: 29.63 m²
•Spavaća soba 1: 13.54 m²
•Spavaća soba 2: 6.35 m²
•Kupaonica: 5.85 m²
•Hodnik: 3.51 m²
•Lođa: 6.20 m² (koeficijent 0.75)
Opis:
Stan na prvom katu s dvije spavaće sobe i kvalitetnom lođom. Pogodan za obiteljski život ili investiciju u najam. Energetski razred: A.

CIJENA: 350.000,00 EUR

 

Stan D1-S17 III. KAT

Ukupna površina: 57,94 m²
Raspored prostorija:
•Dnevni boravak s kuhinjom i blagovaonicom: 27.68 m²
•Spavaća soba: 11.90 m²
•Kupaonica: 5.84 m²
•Hodnik: 3.51 m²
•Lođa: 9.00 m² (koeficijent 0.75)
Opis:
Stan srednje veličine, idealan za parove ili investitore. Postoji veća lođa za ugodan boravak i pogled prema moru. Energetski razred: A.

CIJENA: 284.200,00 EUR

 

 

Stan D1-S18 III. KAT

Ukupna površina: 63,15 m²
Raspored prostorija:
•Dnevni boravak s kuhinjom i blagovaonicom: 20.22 m²
•Spavaća soba 1: 10.10 m²
•Spavaća soba 2: 10.88 m²
•Kupaonica: 6.00 m²
•Hodnik: 10.85 m²
•Lođa: 5.10 m² (koeficijent 0.75)
Opis:
Svijetao i funkcionalan stan s prostranom lođom i ekipiranom kupaonicom. Energetski razred: A.

CIJENA: 309.500,00 EUR

 

Stan D1-S19 III. KAT

Ukupna površina: 75.95 m²
Raspored prostorija:
•Dnevni boravak s kuhinjom i blagovaonicom: 36.00 m²
•Spavaća soba 1: 11.20 m²
•Spavaća soba 2: 13.24 m²
•Kupaonica: 5.84 m²
•Hodnik: 4.56 m²
•Balkon: 10.23 m² (koeficijent 0.50)
Opis:
Prostrani stan s dvije spavaće sobe i velikim balkonom, idealan za obitelji i dugoročni najam. Stan se nalazi na trećem katu s prekrasnim pogledom te nudi visok standard životnog prostora. Energetski razred: A.

CIJENA: 372.150,00 EUR

 

Stan D1-S20 III. KAT

Ukupna površina: 62,64 m²
Raspored prostorija:
•Dnevni boravak s kuhinjom i blagovaonicom: 30.10 m²
•Spavaća soba: 12.92 m²
•Kupaonica: 6.00 m²
•Hodnik: 10.85 m²
•Lođa: 8.39 m² (koeficijent 0.75)
Opis:
Stan s kompaktnim rasporedom i velikom lođom. Izvrsna opcija za investitore ili stalne stanare. Energetski razred: A.

CIJENA: 307.000,00 EUR

Nasalje Nemira - Omiš

Nemira omiš

  • Omiš 3.600 m
  • Bolnice: 3.000m
  • Škola: 2.790m
  • Vrtić: 2.500m
  • Autobusna stanica: 500m
  • Rekreativni park: 150m
  • More: 150m
Kontakt
Kontakt